В этом разделе приводится «экспресс-описание» операций формирования расчетной схемы. После выполнения шаг за шагом описанных ниже действий будет создана простейшая схема. Здесь не рассматриваются операции, связанные с ее модификацией, т.к. основная цель — освоение основных принципов управления комплексом.
Операции формирования расчетной схемы и анализа результатов расчета реализованы в единой графической среде. Расположение элементов управления и, собственно, управление комплексом в этих режимах одинаково. Различается только набор функций.
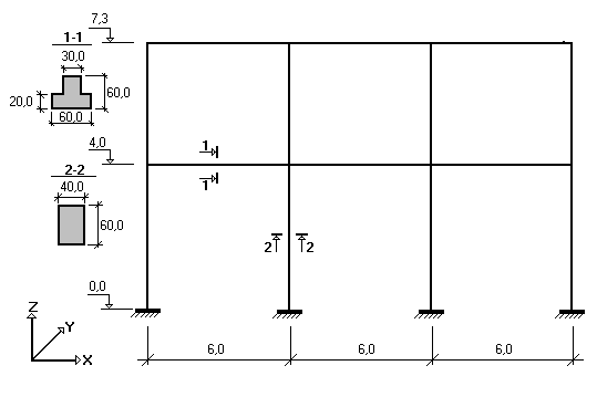
В качестве учебной схемы используем пример, приведенный на рис. 1 — рама, с тремя пролетами и двумя этажами. Для создания расчетной схемы такого объекта можно воспользоваться стандартной операцией Генерация прототипа рамы —
. Эта операция, как и большинство других операций формирования расчетных моделей на основе параметрических прототипов, вызывается из раздела Схема инструментальной панели (рис. 2).
В диалоговом окне Выбор конфигурации рамы установим курсор на пиктограмму с изображением многоэтажной и многопролетной рамы и зафиксируем выбор нажатием на левую кнопку мыши. После нажатия кнопки ОК окно закроется и появится диалоговое окно Задание параметров регулярной рамы.
В этом окне выполняется ввод геометрических размеров рамы, назначаются жесткости элементов и накладываются связи в узлах. Для ввода размеров используются две таблицы: левая — для описания пролетов и правая — для описания этажей.

Рис. 1. Расчетная схема

Рис. 2. Инструментальная панель Схема
Введем в таблицу описания пролетов — три пролета по 6 м, а в таблицу описания этажей — один этаж высотой 4 м и один — высотой 3.3 м.
Активация маркера Автоматическая установка связей означает, что в основании колонн сгенерированной рамы будут назначены связи по направлениям, соответствующим активным (нажатым) кнопкам-маркерам с наименованием степеней свободы. По умолчанию активируются маркеры, соответствующие степеням свободы установленного для задачи типа схемы.
Кнопки Колонны и Ригели служат для ввода жесткостных характеристик соответствующим элементам схемы, а кнопка Тип элемента — для назначения типов конечных элементов.